Negozio in vendita

Bergamo, Via Corridoni - Redona
€ 248.000
122 Mq 122 Mq
2 bagni 2 bagni

Negozio in vendita

Bergamo, Via Corridoni - Redona

Descrizione annuncio

REDONA

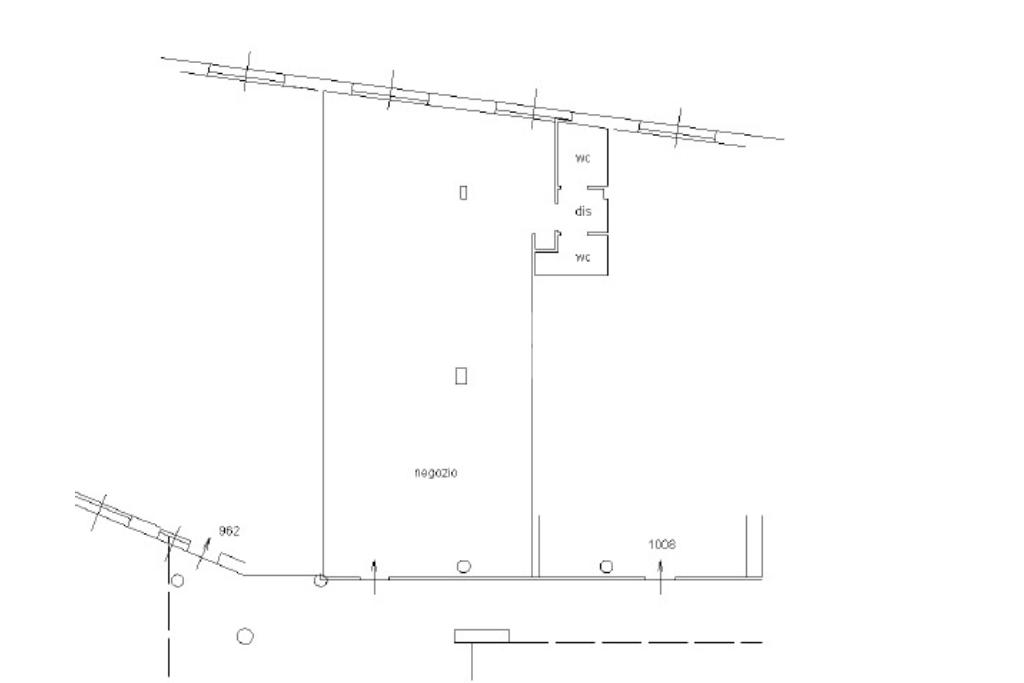
In via Corridoni, in posizione strategica adiacente a Esselunga e Poste, proponiamo in vendita locale commerciale al piano terra di 122 mq.
L’immobile è composto da diverse stanze ed è stato precedentemente adibito a studio medico/estetico, con reception, sauna, locali per trattamenti e cura degli inestetismi, oltre a spazi di servizio.

La zona è ottimamente servita, con parcheggio libero sotterraneo, a pochi passi dalle fermate di autobus e tram e nelle immediate vicinanze del complesso Chorus Life.

Soluzione ideale per studi professionali, centri medici o estetici, uffici o attività commerciali che necessitano di spazi ben organizzati in un contesto di forte passaggio e servizi.

Mostra tutto

Nelle vicinanze

Trasporto pubblico Trasporto pubblico
Bergamo Alta
Bergamo Alta
1,8 Km
Bergamo Bassa
Bergamo Bassa
1,9 Km
Bergamo Bianzana
Bergamo Bianzana
200 m
Bergamo Redona
Bergamo Redona
370 m
347
347
90 m
Ricariche auto elettriche Ricariche auto elettriche
Bergamo Correnti | ENELX
790 m
A2A BG Don Orione
870 m
A2A BG Palanorda
910 m
A2A BG Parcheggio del cimitero
940 m
A2A BG Fast Corridoni
1,0 Km
Scuole Scuole
Scuola Secondaria Primo Grado "Petteni"
640 m
Scuole
680 m
Scuola Primaria 'Da Rosciate'
680 m
Liceo Scientifico Mascheroni
740 m
Istituto Figlie Sacro Cuore di Gesù
790 m
Farmacia Farmacia
Farmacia
80 m
Farmacia Mandelli
850 m
Farmacia Dott. Grassi
990 m
Farmacia Sant'Anna
1,2 Km
Via Borgo Palazzo
1,3 Km
Ospedali Ospedali
Casa di Cura Privata Villa Santa Apollonia
1,1 Km
Don Orione
1,1 Km
Avis
1,3 Km
Habilita San Marco s.p.a. - sezione
1,7 Km
Habilita San Marco s.p.a. - sede
1,9 Km
Supermercati Supermercati
Esselunga di Via Corridoni
150 m
Despar
400 m
MD
530 m
Penny
540 m
Carrefour - Borgo Santa Caterina
840 m
Negozi Negozi
La Bottegsa Alpina
70 m
Prestige Moda
420 m
Ol forner
440 m
maniMpasta
450 m
Fashion Outlet
450 m
Bar Bar
Corridoni 19
70 m
Be Bop Bar
320 m
Druso Circus
440 m
La Luna Bianca
480 m
Bar
500 m
Ristoranti Ristoranti
La Malga
200 m
Vesuvio
270 m
Trattoria Ca' dell'oste
430 m
Tijuana
450 m
La Cantinaccia
490 m
Mostra tutto

Caratteristiche

Rif.:
61154534
Piano:
Terra di 1
Totale piani:
1
Condizionamento:
Assente
Ascensore:
No
Riscaldamento:
Autonomo
Mostra tutto
Prezzo Prezzo
€ 248.000
Rata mutuo Rata mutuo
€ 1.169 / mese
Spese annue Spese annue
€ 3.000
Proponi il tuo prezzoProponi il tuo prezzo

Altre caratteristiche

Descrizione dei locali
Bagno Cieco

Classe Energetica

C
C
C
C
C
C
C
C
C
EP globale non rinnovabile:
361.03 kW h/m² anno
EP invernale del fabbricato:
EP estiva del fabbricato:
Anno di costruzione:
1996
Riscaldamento:
Autonomo
Tipo impianto:
Ad aria
Tipo alimentazione:
Metano

Ti interessa visionare l'immobile?

Fissa un appuntamento  Fissa un appuntamento

Richiedi informazioni

Clicca su Leggi per aprire l'informativa
* Questi campi sono obbligatori

Calcola il tuo mutuo

Semplice e senza impegno
Anticipo

( % )
Mutuo

( % )

pochi semplici passi

inserisci i tuoi dati
Questionario completato
Grazie per aver richiesto un appuntamento senza impegno con un nostro Consulente del Credito e Assicurativo.

Hai inserito correttamente tutti i dati necessari e a breve riceverai una e-mail con un link da convalidare per inviare i tuoi dati.
Affiliato
Bsc Immobiliare Srl
Via Borgo Santa Caterina, 53/B 24124 Bergamo (BG)

Il nostro staff


  • Alessio Fumagalli
    Collaboratore

  • Anna Amato
    Affiliata

  • Mina Palmieri
    Coordinatrice
Via Borgo Santa Caterina, 53/B 24124 Bergamo (BG)
Zona: Bergamo - B.go S.Caterina - Redona - Stadio - Monterosso - Valtesse
Mostra su mappa
Orari: lunedì - venerdì dalle 9.00 alle 12.30 e dalle 14.30 alle 20.00;sabato dalle 9.00 alle 12.30 e dalle 14.30 alle 18.00
Affiliato
Bsc Immobiliare Srl
Via Borgo Santa Caterina, 53/B 24124 Bergamo (BG)

2026 Tecnocasa Franchising S.p.A. - P. IVA 08365160152 - Via Monte Bianco 60/A 20089 Rozzano (MI). Ogni agenzia ha un proprio titolare ed è autonoma. Privacy policy | Policy utilizzo | Cookie policy