Trilocale in vendita

Bergamo, Via Milazzo - Borgo Santa Caterina
€ 465.000
3 locali 3 locali
120 Mq 120 Mq
2 bagni 2 bagni

Trilocale in vendita

Bergamo, Via Milazzo - Borgo Santa Caterina

Descrizione annuncio

QUARTIERE FINARDI-

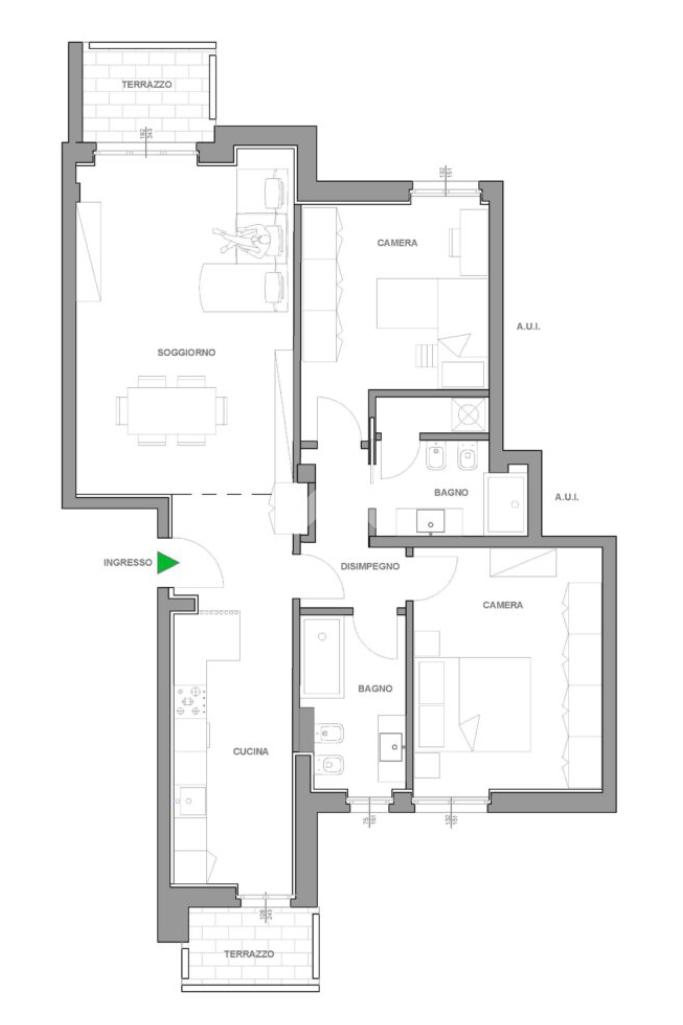
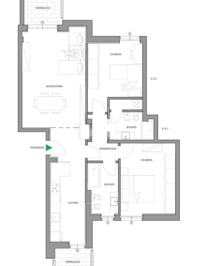
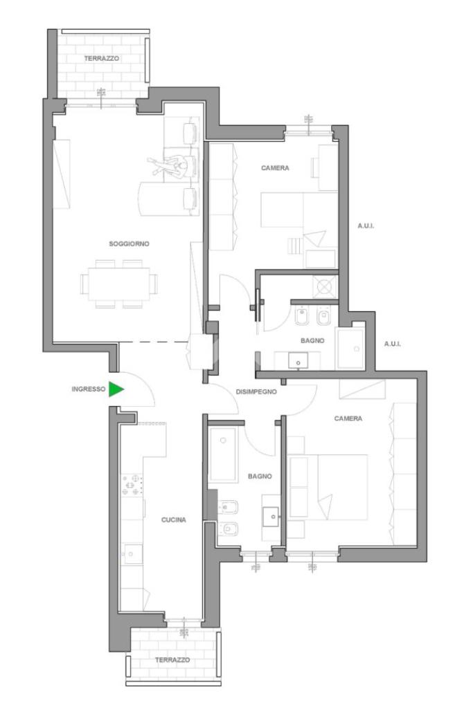
Nel rinomato quartiere Finardi, uno dei contesti residenziali più eleganti e ricercati di Bergamo, proponiamo in vendita un ampio e luminoso trilocale di 120 mq, situato in una strada privata ma a pochi passi da tutti i principali servizi.

L’immobile si trova al secondo piano di un complesso signorile servito da ascensore e dotato di giardino condominiale, recentemente oggetto di importanti interventi di riqualificazione che hanno interessato il rifacimento delle facciate e la sostituzione della caldaia centralizzata, con un significativo miglioramento dell’efficienza energetica.

L’appartamento si apre su un ingresso accogliente, impreziosito da abbassamenti estetici con illuminazione a LED, che conduce alla luminosa zona living con accesso a un primo terrazzo. La cucina, separata e funzionale, si affaccia su un secondo terrazzo, ideale per momenti di relax.

La zona notte comprende due ampie camere da letto e doppi servizi con finiture ricercate. Il bagno principale, finestrato, è dotato di una spaziosa doccia in resina; il secondo bagno, anch’esso con doccia, ospita un pratico spazio lavanderia con predisposizione per lavatrice e asciugatrice.

L’abitazione è stata progettata con grande attenzione all’ottimizzazione degli spazi e offre ampie possibilità di personalizzazione: progetto e finiture possono essere adattati secondo i propri gusti, per creare una soluzione abitativa su misura.

Questa proposta rappresenta la scelta ideale per chi desidera riservatezza, comfort e qualità abitativa in una delle zone più signorili della città.

Completano la proprietà la possibilità di una cantina a €5.000 e di un box singolo all’interno dello stabile a €38.000.
È inoltre possibile usufruire delle detrazioni fiscali previste per i lavori di ristrutturazione.

Mostra tutto

Nelle vicinanze

Trasporto pubblico Trasporto pubblico
Bergamo Alta
Bergamo Alta
1,6 Km
Bergamo Bassa
Bergamo Bassa
1,7 Km
Bergamo Bianzana
Bergamo Bianzana
380 m
Bergamo Redona
Bergamo Redona
580 m
26
26
110 m
Ricariche auto elettriche Ricariche auto elettriche
A2A BG Palanorda
720 m
A2A BG Parcheggio del cimitero
930 m
A2A BG Don Orione
980 m
Bergamo Correnti | ENELX
1,0 Km
Ekomobil - 22 kW
1,2 Km
Scuole Scuole
Liceo Scientifico Mascheroni
540 m
Scuola Primaria 'Da Rosciate'
550 m
Istituto Figlie Sacro Cuore di Gesù
570 m
Centro Scolastico Tua Scuola
590 m
Scuola primaria "G. Rosa"
830 m
Farmacia Farmacia
Farmacia
130 m
Farmacia Mandelli
640 m
Farmacia Dott. Grassi
920 m
Farmacia Sant'Anna
1,2 Km
Via Borgo Palazzo
1,2 Km
Ospedali Ospedali
Casa di Cura Privata Villa Santa Apollonia
950 m
Don Orione
1,2 Km
Avis
1,3 Km
Habilita San Marco s.p.a. - sezione
1,5 Km
Habilita San Marco s.p.a. - sede
1,7 Km
Supermercati Supermercati
Despar
250 m
Esselunga di Via Corridoni
350 m
Penny
540 m
MD
610 m
Carrefour - Borgo Santa Caterina
630 m
Negozi Negozi
Prestige Moda
230 m
Ol forner
230 m
maniMpasta
230 m
Fashion Outlet
240 m
La Bottegsa Alpina
280 m
Bar Bar
Be Bop Bar
200 m
Corridoni 19
210 m
La Chupiteria
360 m
Marika'sss
410 m
Bar
470 m
Ristoranti Ristoranti
Vesuvio
100 m
Trattoria Ca' dell'oste
210 m
Tijuana
230 m
La Malga
400 m
CantiereCucina
590 m
Mostra tutto

Caratteristiche

Rif.:
61156086
Piano:
2 di 4 con ascensore (Piano medio)
Terrazzi:
2
Camere da letto:
2
Arredamento:
Assente
Condizionamento:
Autonomo
Mostra tutto
Prezzo Prezzo
€ 465.000
Prezzo box Prezzo box
€ 38.000
Rata mutuo Rata mutuo
€ 2.191 / mese
Spese annue Spese annue
€ 2.400
Proponi il tuo prezzoProponi il tuo prezzo

Classe Energetica

A1
A1
A1
A1
A1
A1
A1
A1
A1
EP invernale del fabbricato:
EP estiva del fabbricato:
Anno di costruzione:
1979
Riscaldamento:
Centralizzato
Tipo impianto:
A radiatori
Tipo alimentazione:
Metano

Ti interessa visionare l'immobile?

Fissa un appuntamento  Fissa un appuntamento

Richiedi informazioni

Clicca su Leggi per aprire l'informativa
* Questi campi sono obbligatori

Calcola il tuo mutuo

Semplice e senza impegno
Anticipo

( % )
Mutuo

( % )

pochi semplici passi

inserisci i tuoi dati
Questionario completato
Grazie per aver richiesto un appuntamento senza impegno con un nostro Consulente del Credito e Assicurativo.

Hai inserito correttamente tutti i dati necessari e a breve riceverai una e-mail con un link da convalidare per inviare i tuoi dati.
Affiliato
Bsc Immobiliare Srl
Via Borgo Santa Caterina, 53/B 24124 Bergamo (BG)

Il nostro staff


  • Alessio Fumagalli
    Collaboratore

  • Anna Amato
    Affiliata

  • Mina Palmieri
    Coordinatrice
Via Borgo Santa Caterina, 53/B 24124 Bergamo (BG)
Zona: Bergamo - B.go S.Caterina - Redona - Stadio - Monterosso - Valtesse
Mostra su mappa
Orari: lunedì - venerdì dalle 9.00 alle 12.30 e dalle 14.30 alle 20.00;sabato dalle 9.00 alle 12.30 e dalle 14.30 alle 18.00
Affiliato
Bsc Immobiliare Srl
Via Borgo Santa Caterina, 53/B 24124 Bergamo (BG)

2026 Tecnocasa Franchising S.p.A. - P. IVA 08365160152 - Via Monte Bianco 60/A 20089 Rozzano (MI). Ogni agenzia ha un proprio titolare ed è autonoma. Privacy policy | Policy utilizzo | Cookie policy