Bilocale in vendita

Bergamo, Via Milazzo - Borgo Santa Caterina
€ 249.000
2 locali 2 locali
55 Mq 55 Mq
1 bagno 1 bagno

Bilocale in vendita

Bergamo, Via Milazzo - Borgo Santa Caterina

Descrizione annuncio

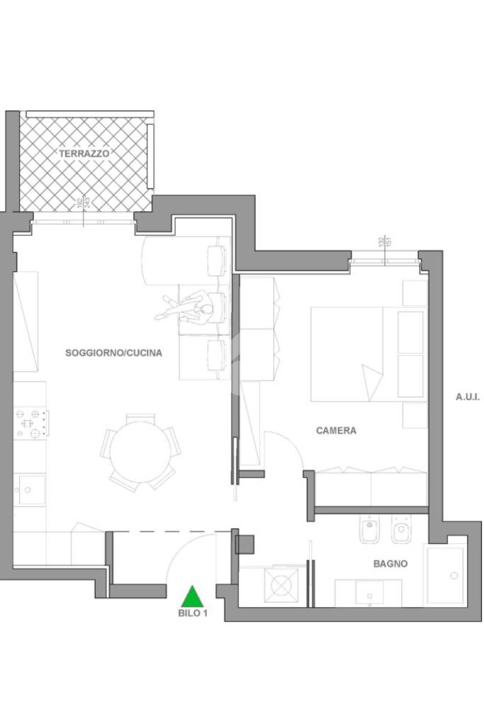
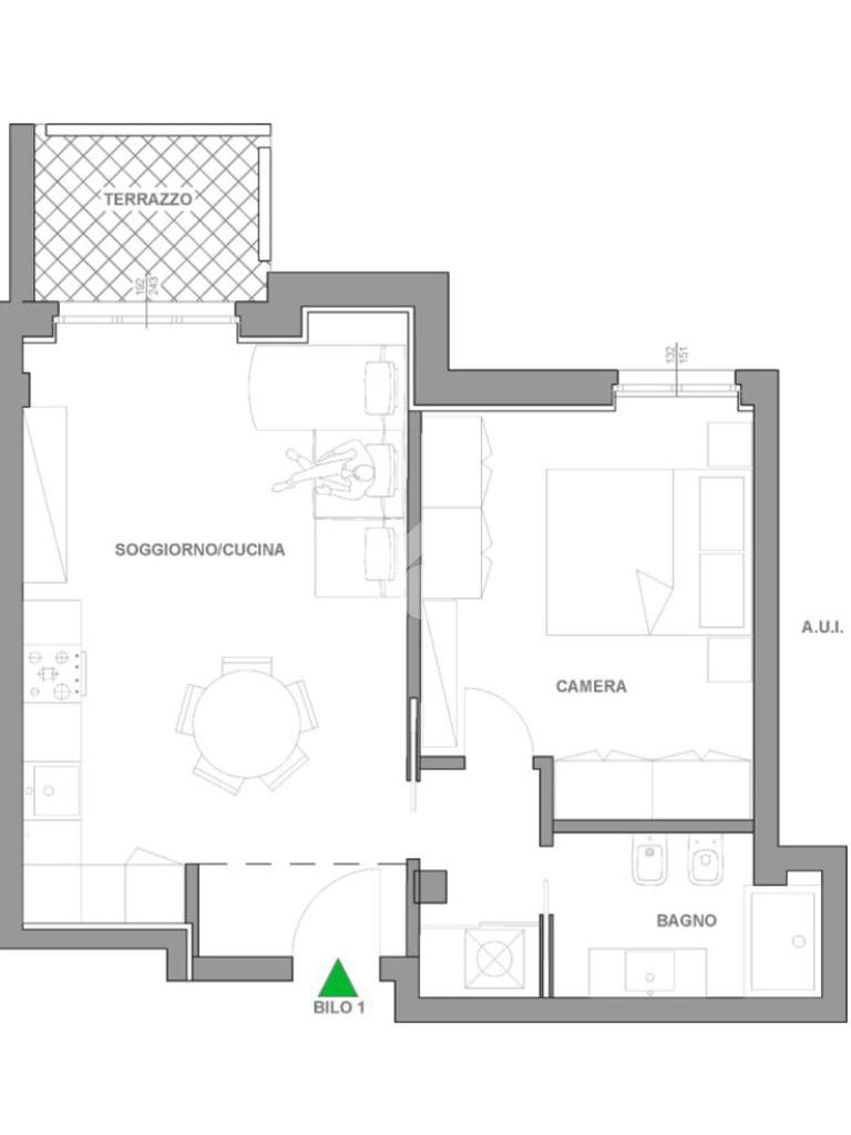
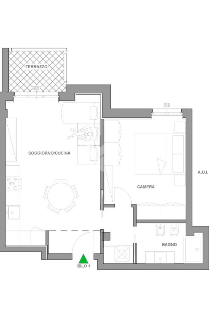
QUARTIERE FINARDI

Nel prestigioso quartiere Finardi, uno dei contesti residenziali più esclusivi di Bergamo, in una tranquilla strada privata a pochi passi dai principali servizi, proponiamo in vendita un bilocale al secondo piano servito da ascensore. L’immobile fa parte di un complesso signorile con giardino condominiale, recentemente sottoposto a interventi di riqualificazione, tra cui il rifacimento delle facciate e la sostituzione della caldaia centralizzata, che garantiscono elevato comfort abitativo.

L’appartamento si apre su un accogliente ingresso impreziosito da controsoffittature con luci a LED, che conduce alla moderna zona living con angolo cottura, anch’essa valorizzata da dettagli di design e illuminazione studiata. La zona giorno si affaccia su un balcone che dona luminosità e ariosità agli ambienti.

La zona notte comprende una spaziosa camera matrimoniale, un disimpegno con predisposizione per lavatrice/asciugatrice e un bagno elegante, rifinito con materiali di qualità e dotato di ampia doccia in resina.

L’appartamento è stato progettato per ottimizzare gli spazi e offre ampie possibilità di personalizzazione: progetto e finiture possono essere adattati secondo i propri gusti, creando una casa su misura.

Grazie al suo elevato potenziale di redditività, questa soluzione rappresenta un’ottima opportunità sia per investitori, sia per chi desidera vivere in un contesto signorile e riservato.

Completano la proprietà una cantina a €5.000 e un box singolo all’interno dello stabile a €38.000. È inoltre possibile usufruire delle detrazioni fiscali per lavori di ristrutturazione.

Mostra tutto

Nelle vicinanze

Trasporto pubblico Trasporto pubblico
Bergamo Alta
Bergamo Alta
1,6 Km
Bergamo Bassa
Bergamo Bassa
1,7 Km
Bergamo Bianzana
Bergamo Bianzana
380 m
Bergamo Redona
Bergamo Redona
580 m
26
26
110 m
Ricariche auto elettriche Ricariche auto elettriche
A2A BG Palanorda
720 m
A2A BG Parcheggio del cimitero
930 m
A2A BG Don Orione
980 m
Bergamo Correnti | ENELX
1,0 Km
Ekomobil - 22 kW
1,2 Km
Scuole Scuole
Liceo Scientifico Mascheroni
540 m
Scuola Primaria 'Da Rosciate'
550 m
Istituto Figlie Sacro Cuore di Gesù
570 m
Centro Scolastico Tua Scuola
590 m
Scuola primaria "G. Rosa"
830 m
Farmacia Farmacia
Farmacia
130 m
Farmacia Mandelli
640 m
Farmacia Dott. Grassi
920 m
Farmacia Sant'Anna
1,2 Km
Via Borgo Palazzo
1,2 Km
Ospedali Ospedali
Casa di Cura Privata Villa Santa Apollonia
950 m
Don Orione
1,2 Km
Avis
1,3 Km
Habilita San Marco s.p.a. - sezione
1,5 Km
Habilita San Marco s.p.a. - sede
1,7 Km
Supermercati Supermercati
Despar
250 m
Esselunga di Via Corridoni
350 m
Penny
540 m
MD
610 m
Carrefour - Borgo Santa Caterina
630 m
Negozi Negozi
Prestige Moda
230 m
Ol forner
230 m
maniMpasta
230 m
Fashion Outlet
240 m
La Bottegsa Alpina
280 m
Bar Bar
Be Bop Bar
200 m
Corridoni 19
210 m
La Chupiteria
360 m
Marika'sss
410 m
Bar
470 m
Ristoranti Ristoranti
Vesuvio
100 m
Trattoria Ca' dell'oste
210 m
Tijuana
230 m
La Malga
400 m
CantiereCucina
590 m
Mostra tutto

Caratteristiche

Rif.:
61156085
Piano:
2 di 4 con ascensore (Piano medio)
Terrazzi:
1
Camere da letto:
1
Arredamento:
Assente
Condizionamento:
Autonomo
Mostra tutto
Prezzo Prezzo
€ 249.000
Prezzo box Prezzo box
€ 38.000
Rata mutuo Rata mutuo
€ 1.173 / mese
Spese annue Spese annue
€ 1.200
Proponi il tuo prezzoProponi il tuo prezzo

Classe Energetica

A1
A1
A1
A1
A1
A1
A1
A1
A1
EP invernale del fabbricato:
EP estiva del fabbricato:
Anno di costruzione:
1979
Riscaldamento:
Centralizzato
Tipo impianto:
A radiatori
Tipo alimentazione:
Metano

Ti interessa visionare l'immobile?

Fissa un appuntamento  Fissa un appuntamento

Richiedi informazioni

Clicca su Leggi per aprire l'informativa
* Questi campi sono obbligatori

Calcola il tuo mutuo

Semplice e senza impegno
Anticipo

( % )
Mutuo

( % )

pochi semplici passi

inserisci i tuoi dati
Questionario completato
Grazie per aver richiesto un appuntamento senza impegno con un nostro Consulente del Credito e Assicurativo.

Hai inserito correttamente tutti i dati necessari e a breve riceverai una e-mail con un link da convalidare per inviare i tuoi dati.
Affiliato
Bsc Immobiliare Srl
Via Borgo Santa Caterina, 53/B 24124 Bergamo (BG)

Il nostro staff


  • Alessio Fumagalli
    Collaboratore

  • Anna Amato
    Affiliata

  • Mina Palmieri
    Coordinatrice
Via Borgo Santa Caterina, 53/B 24124 Bergamo (BG)
Zona: Bergamo - B.go S.Caterina - Redona - Stadio - Monterosso - Valtesse
Mostra su mappa
Orari: lunedì - venerdì dalle 9.00 alle 12.30 e dalle 14.30 alle 20.00;sabato dalle 9.00 alle 12.30 e dalle 14.30 alle 18.00
Affiliato
Bsc Immobiliare Srl
Via Borgo Santa Caterina, 53/B 24124 Bergamo (BG)

2026 Tecnocasa Franchising S.p.A. - P. IVA 08365160152 - Via Monte Bianco 60/A 20089 Rozzano (MI). Ogni agenzia ha un proprio titolare ed è autonoma. Privacy policy | Policy utilizzo | Cookie policy