Trilocale in vendita

Bergamo, Via dei Bersaglieri - Martinella
€ 179.000
3 locali 3 locali
62 Mq 62 Mq
1 bagno 1 bagno

Trilocale in vendita

Bergamo, Via dei Bersaglieri - Martinella

Descrizione annuncio

BERGAMO–Via Bersaglieri 6


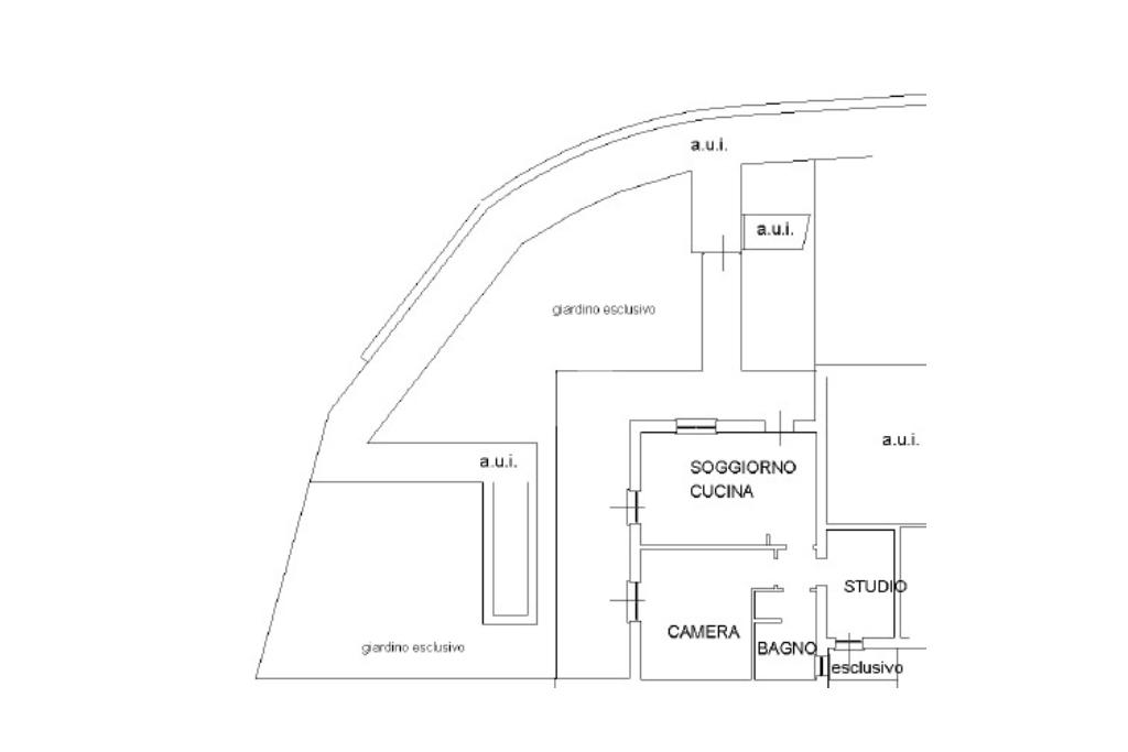
In stabile recente del 2003, proponiamo in vendita un appartamento al piano terra caratterizzato da ambienti funzionali e da un’ottima vivibilità degli spazi esterni.

L’abitazione è composta da soggiorno con cucina a vista, camera da letto, studio, bagno, disimpegno e porzioni di giardino esclusivo, perfette per momenti di relax all’aperto.
Al piano interrato completano la proprietà un vano cantina e una autorimessa doppia, ideale per due auto o per chi necessita di ampi spazi di deposito.

Dotazioni: riscaldamento autonomo, impianto d’allarme, telecamere di sicurezza, aria condizionata e serramenti in legno con doppio vetro, che garantiscono comfort, efficienza e sicurezza.

L’immobile si trova in una zona in fase di importante riqualificazione urbana, a pochi passi dal centro e comoda a tutti i principali servizi.

Soluzione ideale per chi cerca tranquillità, praticità e vicinanza al cuore di Bergamo.

Mostra tutto

Nelle vicinanze

Trasporto pubblico Trasporto pubblico
Bergamo
Bergamo
2,2 Km
Bergamo Alta
Bergamo Alta
2,5 Km
Bergamo Bianzana
Bergamo Bianzana
650 m
Bergamo Redona
Bergamo Redona
650 m
480
480
90 m
Ricariche auto elettriche Ricariche auto elettriche
Bergamo Correnti | ENELX
430 m
Ekomobil - 22 kW
550 m
A2A BG Bonatti
620 m
A2A BG Parcheggio del cimitero
910 m
A2A BG Fast Corridoni
990 m
Scuole Scuole
I.P. Servizi - Sonzogni succursale
500 m
Scuole
610 m
Scuola Secondaria Primo Grado "Petteni"
620 m
Ex Mensa
750 m
Scuole Paritarie I e II grado (iSchool)
1,0 Km
Farmacia Farmacia
Farmacia
780 m
Via Borgo Palazzo
1,2 Km
Farmacia Borgo Palazzo
1,2 Km
Farmacia Clementina
1,2 Km
Farmacia Sant'Anna
1,3 Km
Ospedali Ospedali
Don Orione
1,5 Km
Casa di Cura Privata Villa Santa Apollonia
1,9 Km
Avis
2,0 Km
Humanitas Gavazzeni
2,1 Km
Habilita San Marco s.p.a. - sezione
2,3 Km
Supermercati Supermercati
Penny
790 m
Esselunga di Via Corridoni
810 m
Despar
1,1 Km
D Più
1,1 Km
Natura Sì
1,1 Km
Negozi Negozi
La Bottegsa Alpina
780 m
Panificio Marchesi
1,1 Km
Prestige Moda
1,1 Km
Bergamo Divise
1,2 Km
Silvia
1,2 Km
Bar Bar
Bar
340 m
Edonè
510 m
La Luna Bianca
730 m
Corridoni 19
820 m
Bar
870 m
Ristoranti Ristoranti
La Cantinaccia
530 m
Il rifugio in Città
560 m
La Malga
640 m
Pizzeria Vecchio Forno
930 m
Vesuvio
1,0 Km
Mostra tutto

Caratteristiche

Rif.:
61150109
Piano:
Terra di 2
Totale piani:
2
Box:
1
Camere da letto:
2
Arredamento:
Assente
Mostra tutto
Prezzo Prezzo
€ 179.000
Rata mutuo Rata mutuo
€ 843 / mese
Spese annue Spese annue
€ 1.300
Proponi il tuo prezzoProponi il tuo prezzo

Classe Energetica

E
E
E
E
E
E
E
E
E
EP invernale del fabbricato:
EP estiva del fabbricato:
Anno di costruzione:
2003
Riscaldamento:
Autonomo
Tipo impianto:
A radiatori
Tipo alimentazione:
Metano

Ti interessa visionare l'immobile?

Fissa un appuntamento  Fissa un appuntamento

Richiedi informazioni

Clicca su Leggi per aprire l'informativa
* Questi campi sono obbligatori

Calcola il tuo mutuo

Semplice e senza impegno
Anticipo

( % )
Mutuo

( % )

pochi semplici passi

inserisci i tuoi dati
Questionario completato
Grazie per aver richiesto un appuntamento senza impegno con un nostro Consulente del Credito e Assicurativo.

Hai inserito correttamente tutti i dati necessari e a breve riceverai una e-mail con un link da convalidare per inviare i tuoi dati.
Affiliato
Bsc Immobiliare Srl
Via Borgo Santa Caterina, 53/B 24124 Bergamo (BG)

Il nostro staff


  • Alessio Fumagalli
    Collaboratore

  • Anna Amato
    Affiliata

  • Mina Palmieri
    Coordinatrice
Via Borgo Santa Caterina, 53/B 24124 Bergamo (BG)
Zona: Bergamo - B.go S.Caterina - Redona - Stadio - Monterosso - Valtesse
Mostra su mappa
Orari: lunedì - venerdì dalle 9.00 alle 12.30 e dalle 14.30 alle 20.00;sabato dalle 9.00 alle 12.30 e dalle 14.30 alle 18.00
Affiliato
Bsc Immobiliare Srl
Via Borgo Santa Caterina, 53/B 24124 Bergamo (BG)

2026 Tecnocasa Franchising S.p.A. - P. IVA 08365160152 - Via Monte Bianco 60/A 20089 Rozzano (MI). Ogni agenzia ha un proprio titolare ed è autonoma. Privacy policy | Policy utilizzo | Cookie policy