Quadrilocale in vendita

Bergamo, Via tedeschi giacomo radini - Redona
€ 369.000
4 locali 4 locali
127 Mq 127 Mq
2 bagni 2 bagni

Quadrilocale in vendita

Bergamo, Via tedeschi giacomo radini - Redona

Descrizione annuncio

REDONA

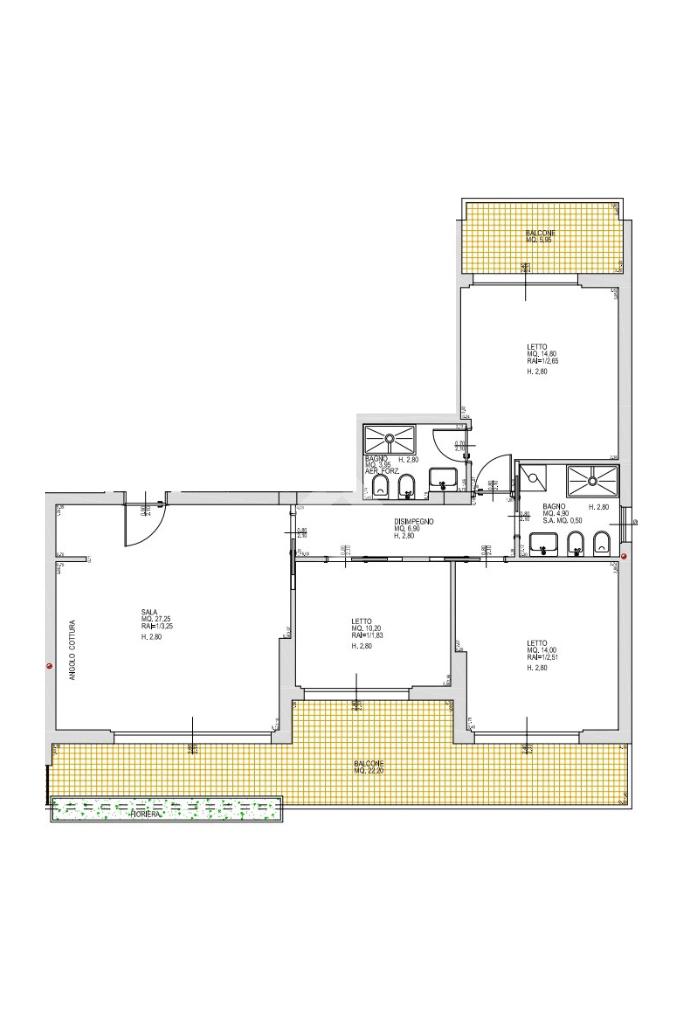
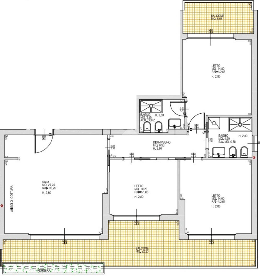
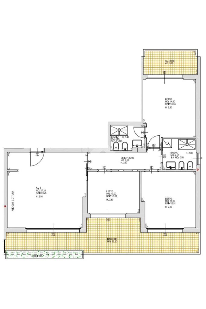
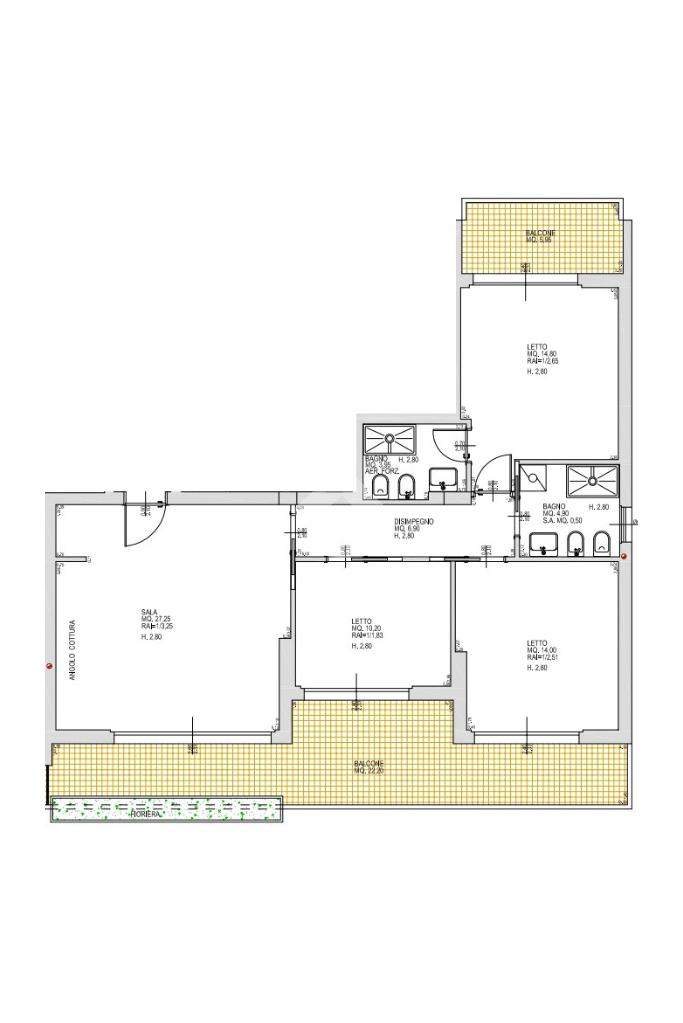
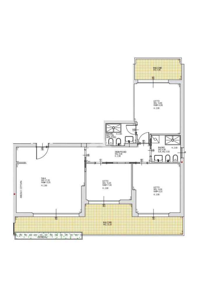
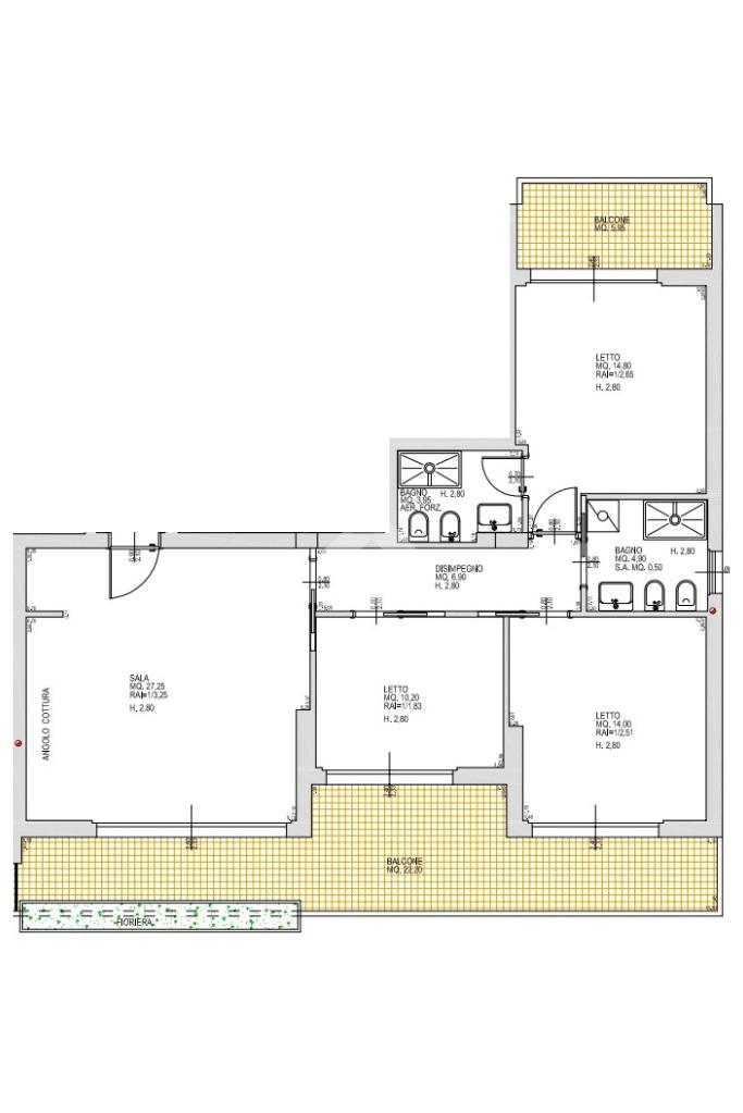
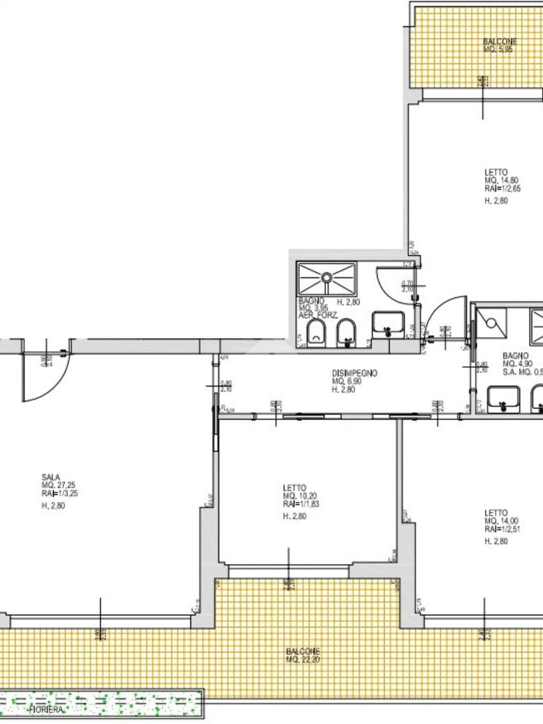
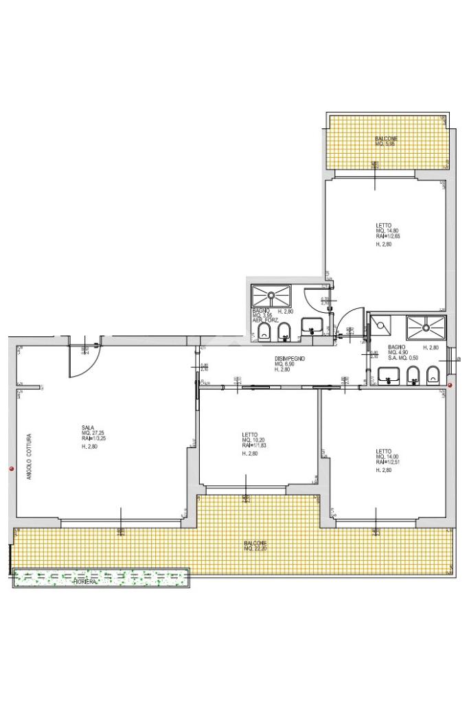
Nel cuore di Redona, in una zona residenziale tranquilla ma ottimamente servita, a pochi passi dalla TEB, dalle fermate dell’autobus e dai principali servizi, proponiamo in vendita un quadrilocale completamente ristrutturato, situato al terzo piano di una palazzina dotata di ascensore e giardino condominiale.

L’appartamento, attualmente oggetto di una completa ristrutturazione con consegna prevista per fine dicembre, è la soluzione ideale per chi cerca ambienti moderni, funzionali e ben distribuiti. La composizione prevede ingresso, ampio soggiorno con angolo cottura, tre camere da letto, due bagni e due ampi terrazzi vivibili per un totale di circa 30 mq, ideali per momenti di relax all’aperto.

Gli spazi sono stati progettati per offrire luminosità e comfort, con finiture contemporanee e materiali di qualità: pavimento in gres porcellanato chiaro effetto pietra, serramenti in PVC con doppio vetro e tapparelle elettriche, porte interne bianche modello Quadra, controsoffitti con faretti, predisposizione per climatizzazione e impianto antintrusione. I bagni saranno dotati di sanitari sospesi, doccia, rubinetteria di design e predisposizione per lavatrice e asciugatrice.

L’intervento mira a garantire un buon livello di efficienza energetica, con classe energetica prevista B.

Completa la proprietà un box singolo al prezzo di €25.000.
Su richiesta, e compatibilmente con lo stato di avanzamento dei lavori, è possibile valutare alcune personalizzazioni, sempre nel rispetto delle normative e delle specifiche tecniche.

Una soluzione moderna, spaziosa e pronta ad accogliere chi cerca uno stile di vita pratico, in un quartiere verde, ben servito e ottimamente collegato.

Mostra tutto

Nelle vicinanze

Trasporto pubblico Trasporto pubblico
Bergamo Alta
Bergamo Alta
1,3 Km
Bergamo Bassa
Bergamo Bassa
1,4 Km
Bergamo Bianzana
Bergamo Bianzana
600 m
Bergamo San Fermo
Bergamo San Fermo
640 m
23
23
30 m
Ricariche auto elettriche Ricariche auto elettriche
A2A BG Palanorda
440 m
A2A BG Parcheggio del cimitero
890 m
A2A BG Fast Baioni
1,1 Km
A2A BG Cefalonia
1,2 Km
A2A BG Don Orione
1,2 Km
Scuole Scuole
Liceo Scientifico Mascheroni
260 m
Centro Scolastico Tua Scuola
310 m
Scuola Primaria 'Da Rosciate'
360 m
Istituto Figlie Sacro Cuore di Gesù
380 m
Scuola dell'Infanzia Arcobaleno
740 m
Farmacia Farmacia
Farmacia
200 m
Farmacia Mandelli
370 m
Farmacia Sant'Anna
1,0 Km
Farmacia Dott. Grassi
1,0 Km
Farmacia Sangalli
1,1 Km
Ospedali Ospedali
Casa di Cura Privata Villa Santa Apollonia
980 m
Habilita San Marco s.p.a. - sezione
1,2 Km
Habilita San Marco s.p.a. - sede
1,4 Km
Avis
1,4 Km
Don Orione
1,4 Km
Supermercati Supermercati
Despar
190 m
Carrefour - Borgo Santa Caterina
340 m
Penny
560 m
Esselunga di Via Corridoni
640 m
MD
850 m
Negozi Negozi
Outlet 0-16
20 m
Colombi 2000
40 m
Fashion Outlet
40 m
Ol forner
60 m
maniMpasta
60 m
Bar Bar
La Chupiteria
80 m
Marika'sss
120 m
Be Bop Bar
240 m
Tacco Dodici Cafè
300 m
Bar Suardi
330 m
Ristoranti Ristoranti
Tijuana
80 m
Trattoria Ca' dell'oste
130 m
Vesuvio
230 m
CantiereCucina
310 m
al Pitentino
410 m
Mostra tutto

Caratteristiche

Rif.:
61116923
Piano:
3 di 7 con ascensore (Piano alto)
Box:
1
Terrazzi:
2
Camere da letto:
3
Arredamento:
Assente
Mostra tutto
Prezzo Prezzo
€ 369.000
Prezzo box Prezzo box
€ 25.000
Rata mutuo Rata mutuo
€ 1.742 / mese
Spese annue Spese annue
€ 1.500
Proponi il tuo prezzoProponi il tuo prezzo

Classe Energetica

B
B
B
B
B
B
B
B
B
EP invernale del fabbricato:
EP estiva del fabbricato:
Anno di costruzione:
1977
Riscaldamento:
Centralizzato
Tipo impianto:
A radiatori
Tipo alimentazione:
Metano

Ti interessa visionare l'immobile?

Fissa un appuntamento  Fissa un appuntamento

Richiedi informazioni

Clicca su Leggi per aprire l'informativa
* Questi campi sono obbligatori

Calcola il tuo mutuo

Semplice e senza impegno
Anticipo

( % )
Mutuo

( % )

pochi semplici passi

inserisci i tuoi dati
Questionario completato
Grazie per aver richiesto un appuntamento senza impegno con un nostro Consulente del Credito e Assicurativo.

Hai inserito correttamente tutti i dati necessari e a breve riceverai una e-mail con un link da convalidare per inviare i tuoi dati.
Affiliato
Bsc Immobiliare Srl
Via Borgo Santa Caterina, 53/B 24124 Bergamo (BG)

Il nostro staff


  • Alessio Fumagalli
    Collaboratore

  • Anna Amato
    Affiliata

  • Mina Palmieri
    Coordinatrice
Via Borgo Santa Caterina, 53/B 24124 Bergamo (BG)
Zona: Bergamo - B.go S.Caterina - Redona - Stadio - Monterosso - Valtesse
Mostra su mappa
Orari: lunedì - venerdì dalle 9.00 alle 12.30 e dalle 14.30 alle 20.00;sabato dalle 9.00 alle 12.30 e dalle 14.30 alle 18.00
Affiliato
Bsc Immobiliare Srl
Via Borgo Santa Caterina, 53/B 24124 Bergamo (BG)

2026 Tecnocasa Franchising S.p.A. - P. IVA 08365160152 - Via Monte Bianco 60/A 20089 Rozzano (MI). Ogni agenzia ha un proprio titolare ed è autonoma. Privacy policy | Policy utilizzo | Cookie policy